Skip to the content
Back
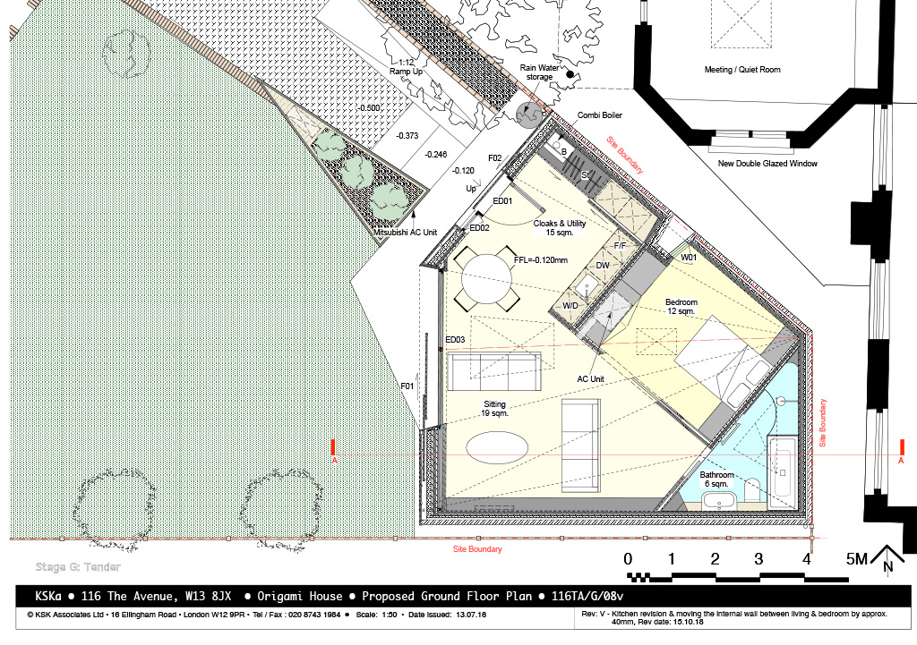
Origami house
West London
New build
5 Months
KSKa Architect
G-frame Structures
awards
Blueprints
Project Gallery