Skip to the content
Back
DEVONPORT ROAD
Shepherd's Bush
Refurbishment
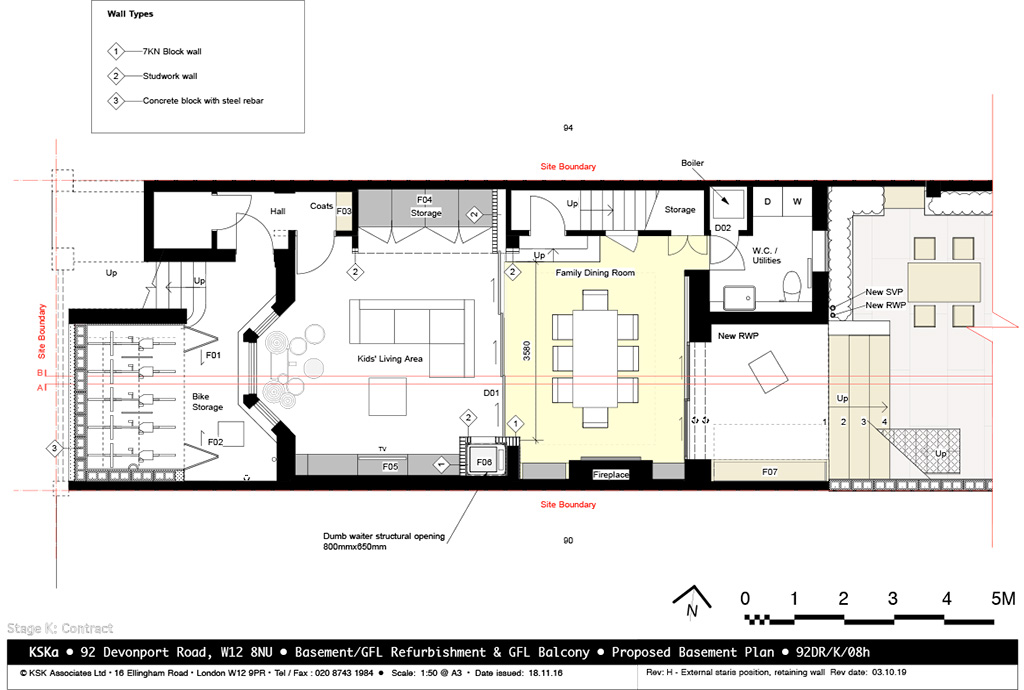
Lower Ground
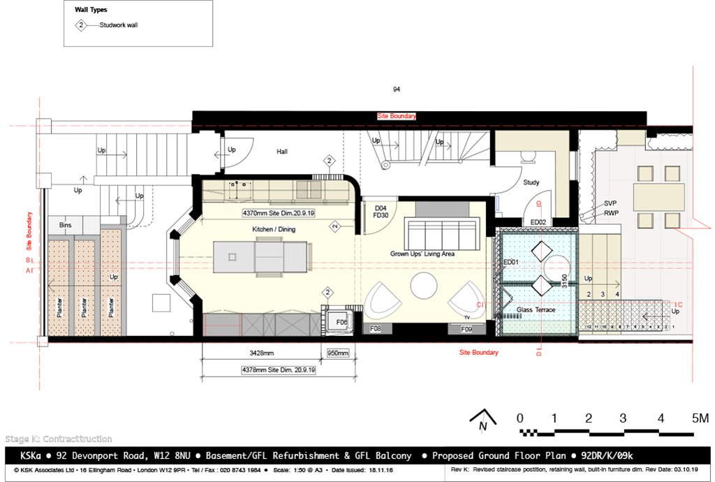
Upper Ground
Garden Design
6 Months
KSKa Architect
Blueprints
Project Gallery