Skip to the content
Back
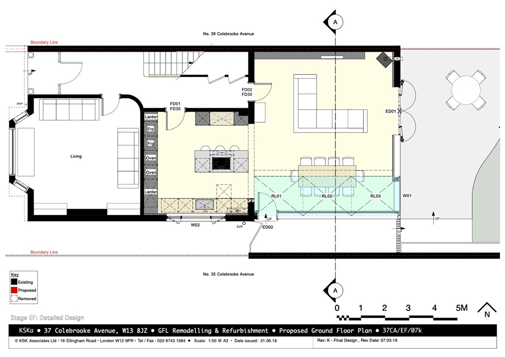
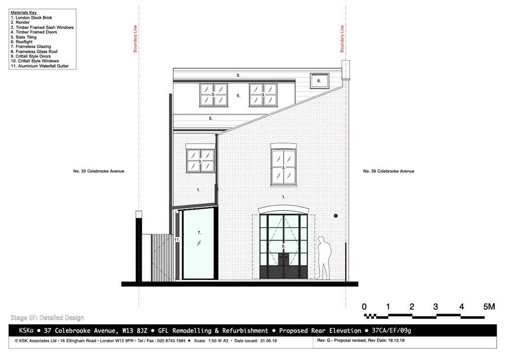
Colebrook avenue
West London
Site Extension
5 Months
KSKa Architect
Blueprints
Project Gallery